Foot Valve Definition And Uses


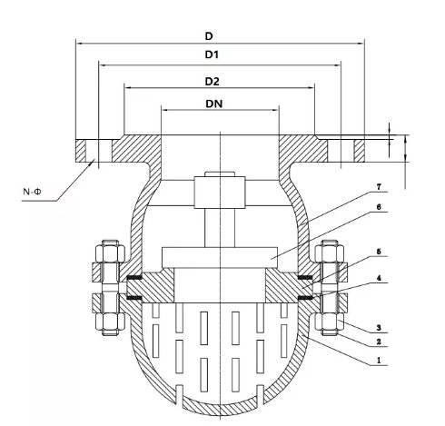
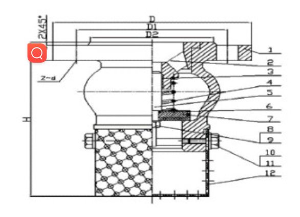
A foot valve is a type of check valve that is installed at the bottom of a suction line in water pumps. It is used to prevent water from flowing back into the pump when the pump is turned off. Foot valves work by only allowing water to flow in one direction, which helps to keep the pump primed and ready for operation.


The main purpose of a foot valve is to maintain the prime of a pump by preventing the suction line from losing its prime due to gravity or backflow. It is commonly used in water pumping systems, such as irrigation systems, well pumps, and sump pumps, where maintaining a constant flow of water is crucial.
High-quality foot valves are essential for maintaining the efficiency and longevity of water pumps. These valves are typically made of durable materials such as stainless steel that are resistant to corrosion and can withstand the pressure and temperature of the fluid being pumped to ensure they can withstand the harsh conditions of pumping water. They often have a strainer or screen at the bottom to prevent debris or solids from entering the pump and causing damage. When the pump is turned on, the foot valve opens to allow water to flow into the pump. When the pump stops, the foot valve closes to prevent water from flowing back out.

Uses: Foot valves are commonly used in ponds, pools, and other water systems where it is important to maintain a consistent flow of water. By preventing water from flowing back into the pump, foot valves help to reduce the risk of damage to the pump and ensure that water flows smoothly through the system.
Overall, foot valves play an essential role in ensuring the efficiency and reliability of pumping systems by preventing the loss of prime and protecting the pump from potential damage.Use high quality foot valves is essential for ensuring the proper functioning of water systems and avoiding costly repairs.
To know more about foot valve ,please contact:info@eathu.com